24/08/2024 15:31:09 PM      2160

Bạn đang lên mạng internet tham khảo thông tin về mẫu nhà mái thái nông thôn để có thêm ý tưởng cho ngôi nhà mới sắp xây dựng của mình, với mong muốn sở hữu một không gian sống thoáng đãng, tiện nghi, hiện đại và thoải mái với chi phí xây dựng không quá cao. Mời bạn cùng tham khảo mẫu thiết kế nhà mái thái đẹp, hiện đại bài viết này Kiến Trúc Mộc Lam xin giới thiệu các mẫu nhà kiểu mái thái, mẫu nhà mái thái cấp 4 đẹp, thiết kế nhà mái thái sang trọng hợp phong thủy...là các mẫu nhà đang được nhiều gia chủ từ thành phố hay nông thôn đều ưu chuộng hiện nay.

Mẫu nhà 2 tầng mái thái đẹp

Mẫu nhà 2 tầng mái thái hiện đại của Kiến Trúc Mộc Lam không chỉ là biểu tượng của sự sang trọng mà còn là biểu hiện của không gian sống tiện nghi, hiện đại và thoải mái. Những thiết kế này thường được chú trọng vào việc tần dụng không gian một cách thông minh, kết hợp giữa kiến trúc hiện đại và tiện ích của cuộc sống hàng ngày giúp gia chủ có một không gian sống hoàn hảo nhất.

Giới Thiệu:

 Nếu bạn đang tìm kiếm một mẫu thiết kế cho ngôi nhà thân yêu của mình thì mẫu thiết kế biệt thự 2 tầng mái thái đẹp dưới đây sẽ là một lựa chọn tuyệt vời cho bạn . Hãy cùng chúng tôi khám phá những đặc điểm độc đáo và tinh tế của ngôi nhà này.

Mô Tả Khu Đất:

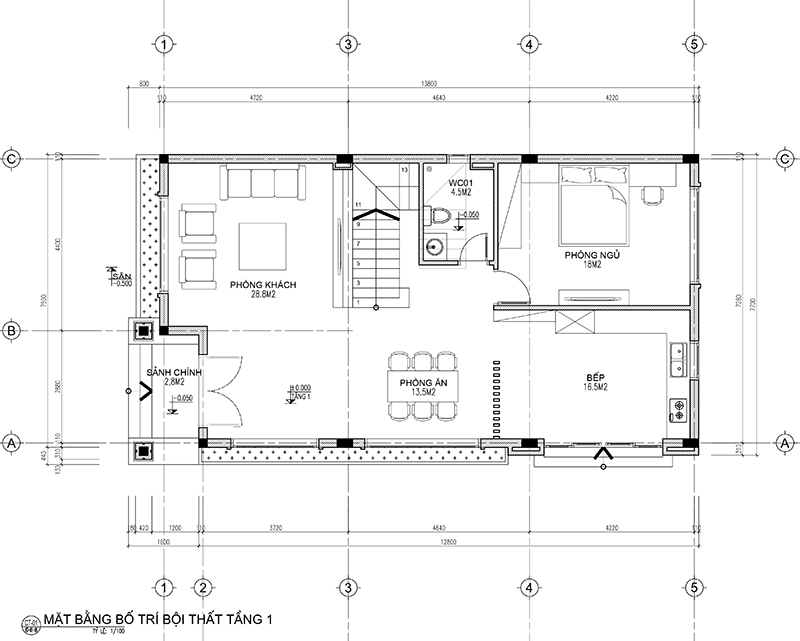
 Ngôi nhà được xây dựng trên lô đất có kích thước chiều rộng 10m, chiều sâu 20m. Ngôi nhà với kích thước 7,7m x 13,8m được đặt lùi về phía sau của lô đất, cách cổng tường rào phía trước 5,5m, cách tường rào bên trái 0,8m, để dành toàn bộ khoảng trống phía trước và bên phải cho việc bố trí sân vườn, tiểu cảnh và để xe ô tô.

Công Năng Tầng 1:

 Tầng 1 với diện tích 106m2, có hai cửa đi, một cửa đi chính đi vào phòng khách, một cửa đi phụ đi vào bếp phía sau. Tầng 1 có không gian phòng khách 28,8m2 liên thông với phòng ăn rộng 13,5m2. Giữa phòng ăn và phòng bếp 16,5m2 phía sau có ngăn bằng hệ lam thoáng trang trí. Tại tầng 1 còn có một phòng ngủ 18m2 dành cho người già và một phòng vệ sinh chung bên cạnh thang bộ.

Mẫu Thiết Kế Mặt Bằng Nhà 2 Tầng Mái Thái 100m2

Công Năng Tầng 2:

 Tầng 2 có hai phòng ngủ, hai phòng vệ, trong đó có một phòng ngủ đặt phía trước với vệ sinh khép kín. Bước lên tầng 2 thì không gian đầu tiên là phòng sinh hoạt chung rộng 10m2. Không gian này phục vụ cho việc sinh hoạt, thư giãn của các thành viên gia đình tại tầng này. Bên cạnh phòng sinh hoạt chung là phòng thờ 6m2. Phía sau nhà là phòng vệ sinh và không gian giặt phơi có mái che. Ngoài ra tại tầng 2 phía trước được thiết kế một không gian sân chơi có giàn hoa, không gian này có thể đặt bàn cafe thư giãn ngoài trời.

Mẫu Thiết Kế Mặt Bằng Nhà 2 Tầng Mái Thái 100m2

Phong cách kiến trúc:

 Với lối kiến trúc hiện đại mái thái nhẹ nhàng được tô điểm bằng những đường nét gờ phào tinh tế khiến cho công trình toát lên vẻ đẹp sang trọng và hài hoà. Tường được sơn màu trắng sữa được tô điểm thêm ghi nhạt và ghi đậm của chất liệu gạch, đá ốp. công trình sử dụng màu ngói ghi tối, rất phù hợp với vóc dáng của một biệt thự nhà vườn ở vùng quê.

Mẫu Thiết Kế Nhà 2 Tầng Mái Thái 100m2

Mẫu Thiết Kế Nhà 2 Tầng Mái Thái 100m2

Mẫu Thiết Kế Nhà 2 Tầng Mái Thái 100m2

Mẫu Thiết Kế Nhà 2 Tầng Mái Thái 100m2

 

Mẫu Thiết Kế Nhà 2 Tầng Mái Thái 100m2

Mẫu Thiết Kế Nhà 2 Tầng Mái Thái 100m2

Mẫu biệt thự 2 tầng mái thái

Giới Thiệu:

 Nếu bạn đang tìm kiếm một mẫu thiết kế cho ngôi nhà thân yêu của mình thì mẫu thiết kế biệt thự 2 tầng mái thái đẹp dưới đây sẽ là một lựa chọn tuyệt vời cho bạn . Hãy cùng chúng tôi khám phá những đặc điểm độc đáo và tinh tế của ngôi nhà này.

Mô Tả Khu Đất:

 Ngôi nhà được xây dựng trên lô đất có kích thước chiều rộng 13m, chiều sâu 30m. Ngôi nhà với kích thước 9,2m x 16,2m được đặt lùi về phía sau của lô đất, cách cổng tường rào phía trước 11m, cách tường rào bên trái 1m, để dành toàn bộ khoảng trống phía trước và bên phải cho việc bố trí sân vườn và tiểu cảnh.

Công Năng Tầng 1:

 Tầng 1 với diện tích 134m2, có hai cửa đi, một cửa đi chính đi vào phòng khách, một cửa đi phụ đi vào phòng bếp ăn. Tầng 1 có không gian phòng khách 36m2 liên thông với phòng ăn rộng 25,8m2. Giữa phòng khách và phòng ăn có ngăn bằng hệ lam thoáng kết hợp làm kệ ti vi phục vụ phòng khách. Bên cạnh phòng là phòng bếp với diện tích 12,6m2, ngăn cách với phòng ăn bằng hệ vách kính trượt nhằm mục đích ngăn mùi ra phòng ăn và phòng khách. Tại tầng 1 còn có một phòng ngủ có phòng vệ sinh khép kín bên trong và một phòng vệ sinh chung bên cạnh thang bộ.

Mẫu Thiết Kế Mặt Bằng Biệt Thự 2 Tầng Mái Thái

Công Năng Tầng 2:

 Tầng 2 có ba phòng ngủ, hai phòng vệ, trong đó có một phòng ngủ đặt phía trước với vệ sinh khép kín. Bước lên tầng 2 thì không gian đầu tiên là phòng sinh hoạt chung rộng 28m2. Không gian này phục vụ cho việc sinh hoạt, thư giãn của các thành viên gia đình tại tầng này. Bên cạnh phòng sinh hoạt chung là phòng thờ đặt phía trước nhà. Từ phòng thờ có thể đi ra ban công bên cạnh.

Mẫu Thiết Kế Mặt Bằng Biệt Thự 2 Tầng Mái Thái

Phong cách kiến trúc:

 Lối kiến trúc mái thái nhẹ nhàng. Đường nét gờ phào tinh tế tạo nên vẻ đẹp sang trọng. Tông màu chủ đạo của ngôi nhà là màu ghi sáng phối hợp với sơn nhấn màu nâu cùng đường viền màu trắng, Ngói lợp sử dụng màu ghi tối thời thượng.

Mẫu Thiết Kế Biệt Thự 2 Tầng Mái Thái

Mẫu Thiết Kế Biệt Thự 2 Tầng Mái Thái

Mẫu Thiết Kế Biệt Thự 2 Tầng Mái Thái

Mẫu Thiết Kế Biệt Thự 2 Tầng Mái TháiMẫu Thiết Kế Biệt Thự 2 Tầng Mái Thái

Mẫu Thiết Kế Biệt Thự 2 Tầng Mái Thái

Những mẫu nhà cấp 4 nông thôn mái thái đẹp

Những ngôi mẫu nhà cấp 4 mái Thái thường có thiết kế mở, tạo điều kiện cho việc tối ưu hóa ánh sáng tự nhiên và quạt gió. Các cửa sổ lớn và cửa đi mở ra không gian thoáng đãng, giúp lưu thông không khí và tạo cảm giác thoải mái trong nhà. Điều này không chỉ mang lại lợi ích sức khỏe mà còn làm cho không gian sống trở nên sáng sủa và tươi mới.

Nếu bạn đang có nhu cầu tham khảo mẫu thiết kế nhà 1 tầng mái thái để lên ý tưởng cho ngôi nhà mới của mình, thì bài viết này Kiến Trúc Mộc Lam xin chia sẻ với bạn mẫu nhà 1 tầng mái thái đẹp được chúng tôi thiết kế cho khách hàng của mình xây dựng tại Sơn La.

Mẫu nhà 1 tầng mái thái

Mẫu nhà 1 tầng mái thái

Nhà cấp 4 mái Thái không chỉ là một nơi ở, mà còn là biểu tượng của sự đẹp tinh tế và sự ấm cúng. Với kiến trúc mang đậm nét truyền thống và sự kết hợp tinh tế giữa yếu tố tự nhiên và hiện đại, mẫu nhà này đã thu hút sự chú ý của nhiều người yêu thích vẻ đẹp kiến trúc.

Sự Hài Hòa Giữa Tinh Tế và Đơn Giản

Một trong những đặc điểm nổi bật của nhà cấp 4 mái Thái là sự hài hòa giữa tinh tế và đơn giản. Với mái nhà cong truyền thống, nhưng cũng không mất đi vẻ hiện đại nhờ kết hợp các chi tiết các cửa kính. Điều này tạo ra một không gian sống đầy cảm hứng và gần gũi với tự nhiên.

Các phòng công năng được bố trí một cách hợp lý, giúp gia chủ có một không gian sống thoải mái và tiết kiệm, mẫu nhà này đã chinh phục được trái tim của nhiều người, mang lại một không gian sống đẹp và ý nghĩa cho gia đình.

Mặt bằng nhà 1 tầng mái thái

Mặt bằng nhà 1 tầng mái thái

Mời bạn xem thêm một số hinh ảnh mẫu nhà biệt thự 1 tầng của Kiến Trúc Mộc Lam bên dưới để có thêm sự lựa chọn ý tưởng cho ngôi nhà thân yêu của mình.

Mẫu Thiết Kế Nhà Mái Thái 1 Tầng Đẹp

Phối Cảnh Nhà Mái Thái 1 Tầng Đẹp

mẫu nhà cấp 4 đẹp hiện đại

mẫu nhà cấp 4 đẹp hiện đại

Hình ảnh thiết kế nhà 1 tầng mái thái đẹp, hiện đại

Hình ảnh thiết kế nhà 1 tầng mái thái đẹp, hiện đại

Các bạn thân mến. Hiện tại Kiến Trúc Mộc Lam còn rất nhiều hồ sơ mẫu thiết kế nhà mái thái đẹp nhưng chúng tôi chưa kịp cập nhật trên website để giời thiệu hết đến bạn. Nếu các bạn đang có nhu cầu thiết kế nhà thì hãy liên hệ ngay với chúng tôi để được tư vấn miễn phí.

CÔNG TY TNHH KIẾN TRÚC MỘC LAM

♦ VPGD : Phòng 3016 Toà FLC Green Apartment, 18A Phạm Hùng​ - Nam Từ Liêm - Hà Nội

♦ Hotline: 085.5555.181

♦ Zalo : 085.5555.181

♦ Website : thegioinhamau.vn

Bản đồ chỉ đường

Tags:

Bài viết khác

Các mẫu thiết kế nhà đẹp mới nhất 2024
Các mẫu thiết kế nhà đẹp mới nhất 2024
25/06/2024 15:51:01 PM 2339

Kiến Trúc Mộc Lam là đơn vị chuyên nghiệp tại Hà Nội trong lĩnh vực thiết kế kiến trúc nhà ở. Bài viết này chúng tôi xin tổng hợp các mẫu nhà đẹp được đội ngũ kiến trúc sư Mộc Lam thiết kế cho khách hàng của mình trong năm 2024. Mời các bạn tham khảo.

10 mẫu biệt thự 2 tầng mái thái đẹp, chi phí chỉ hơn 1 tỷ
10 mẫu biệt thự 2 tầng mái thái đẹp, chi phí chỉ hơn 1 tỷ
03/01/2024 15:25:26 PM 2255

Với kiến trúc ngoại thất đẹp mắt cùng thiết kế nội thất ấn tượng, biệt thự 2 tầng mái Thái là sự lựa chọn lý tưởng của những gia đình có mức thu nhập khá, mong muốn sở hữu một không gian sống thoáng đãng, tiện nghi, thoải mái với chi phí xây dựng không quá cao. Cùng tìm hiểu 10 mẫu biệt thự 2 tầng mái Thái đẹp nhất hiện nay.

Mẫu nhà dưới 100m2 tối ưu không gian, thông minh và đẹp mắt
Mẫu nhà dưới 100m2 tối ưu không gian, thông minh và đẹp mắt
25/06/2025 15:53:01 PM 2210

Kiến Trúc Mộc Lam xin chia sẻ đến bạn những mẫu nhà nhỏ, tối ưu, không gian bố trí thông minh, đẹp mắt, có sân vườn. Mời các bạn tham khảo.

Các mẫu thiết kế nhà 2 tầng đẹp nhất 2025
Các mẫu thiết kế nhà 2 tầng đẹp nhất 2025
19/06/2025 15:59:53 PM 2102

Kiến Trúc Mộc Lam chia sẻ cùng bạn top 1 trong các mẫu thiết kế nhà 2 tầng đẹp nhất 2025 do đơn vị chúng tôi thiết kế cho khách hàng của mình. Hy vọng qua đây là các ý tưởng tuyệt vời cho ngôi nhà sắp xây dựng của bạn. Mời bạn tham khảo

Mẫu Thiết Kế Phòng Ngủ Cực Xinh Cho Bé Gái
Mẫu Thiết Kế Phòng Ngủ Cực Xinh Cho Bé Gái
30/12/2024 15:05:48 PM 2202

Kiến Trúc Mộc Lam mời bạn tham khảo mẫu thiết kế phòng ngủ cho bé gái đẹp hiện đại, sang trọng năm 2024.

Mẫu thiết kế nhà 3 tầng 70m2 mái nhật đẹp
Mẫu thiết kế nhà 3 tầng 70m2 mái nhật đẹp
04/12/2024 15:58:49 PM 2169

Kiến Trúc Mộc Lam xin chia sẻ cùng bạn đây là mẫu thiết kế nhà biệt thự mini 3 tầng 70m2 mái nhật bố trí 5 phòng ngủ đẹp được chúng tôi tư vấn thiết kế cho khách hàng thời gian qua. Mời các bạn tham khảo.

Mẫu thiết kế nhà biệt thự đẹp tại Hà Nội
Mẫu thiết kế nhà biệt thự đẹp tại Hà Nội
04/12/2024 10:02:16 AM 2195

Kiến Trúc Mộc Lam xin chia sẻ cùng bạn các mẫu thiết kế nhà biệt thự đẹp được yêu thích nhất tại Hà Nội 2024 do Kiến trúc sư giỏi tại Hà Nội của chúng tôi tư vấn thiết kế cho khách hàng của mình đầu 2024.

Các mẫu thiết kế nhà 2 tầng đẹp nhất 2024
Các mẫu thiết kế nhà 2 tầng đẹp nhất 2024
28/10/2024 09:21:34 AM 2112

Kiến Trúc Mộc Lam xin chia sẻ cùng bạn những mẫu thiết kế nhà 2 tầng đẹp nhất 2024 do chúng tôi lựa chọn giới thiệu đến bạn. Hy vọng đây là các ý tưởng tuyệt vời cho ngôi nhà sắp xây dựng của bạn. Mời bạn tham khảo

Mẫu nhà 2 tầng nông thôn mái thái giá rẻ 2024
Mẫu nhà 2 tầng nông thôn mái thái giá rẻ 2024
24/10/2024 09:11:00 AM 2120

Kiến Trúc Mộc Lam đơn vị chuyên nghiệp hàng đầu tại Hà Nội trong lĩnh vực tư vấn thiết kế kiến trúc nhà ở. Đây là các mẫu thiết kế nhà 2 tầng đẹp hiện đại và có chi phí xây dựng thấp được chúng tôi tư vấn thiết kế cho khách hàng mới nhất 2024.

Các mẫu thiết kế nhà biệt thự 2 tầng mái thái đẹp nhất 2024
Các mẫu thiết kế nhà biệt thự 2 tầng mái thái đẹp nhất 2024
18/10/2024 14:46:20 PM 2093

Kiến Trúc Mộc Lam xin chia sẻ cùng bạn top 10 các mẫu thiết kế kiến trúc nhà biệt thự 2 tầng mái thái đẹp nhất hiện nay do chúng tôi tư vấn thiết kế cho khách hàng của mình thời gian qua. Mời các bạn tham khảo.

Bản vẽ thiết kế nhà 2 tầng mái thái đẹp 2024
Bản vẽ thiết kế nhà 2 tầng mái thái đẹp 2024
02/10/2024 09:25:57 AM 2151

Thông tin bán bản vẽ thiết kế nhà 2 tầng mái thái có sẵn siêu đẹp, với đầy đủ công năng có mức giá thấp nhất chưa từng thấy. Nếu bạn đang có nhu cầu tư vấn thiết kế nhà đẹp hay mua bản vẽ có sẵn nhà 2 tầng thì hãy liên lạc ngay với chúng tôi để được tư vẫn kỹ hơn nhé.

Bản vẽ thiết kế nhà 2 tầng đẹp, hiện đại 2024
Bản vẽ thiết kế nhà 2 tầng đẹp, hiện đại 2024
27/09/2024 15:37:19 PM 2086

Thông tin bán bản vẽ thiết kế nhà 2 tầng có sẵn siêu đẹp, với đầy đủ công năng có mức giá thấp nhất chưa từng thấy. Nếu bạn đang có nhu cầu mua bản vẽ có sẵn nhà 2 tầng thì hay tham khảo ngay nhé.

Mua bản vẽ thiết kế nhà cấp 4 đẹp 2024
Mua bản vẽ thiết kế nhà cấp 4 đẹp 2024
25/09/2024 09:54:36 AM 2079

Bạn đang lên mạng tham khảo thông tin xem mua bản vẽ thiết kế nhà cấp 4 có sẵn ở đâu uy tín chất lượng nhất hiện nay. Mời bạn tham khảo các mẫu thiết kế nhà cấp 4 đẹp của Kiến Trúc Mộc Lam để có thêm lựa chọn cho kế hoạch xây dựng nhà của mình nhé.

Các Mẫu Biệt Thự 120m đến 150m đẹp sang trọng 2024
Các Mẫu Biệt Thự 120m đến 150m đẹp sang trọng 2024
16/09/2024 14:30:36 PM 2106

Kiến Trúc Mộc Lam xin tổng hợp chia sẻ cùng bạn các mẫu thiết kế nhà biệt thự 120m2 đến 150m2 đẹp, hiện đại mới nhất hiện nay. Mời bạn tham khảo.

Bản Vẽ Hồ Sơ Thiết Kế Nhà 3 Tầng Hiện Đại
Bản Vẽ Hồ Sơ Thiết Kế Nhà 3 Tầng Hiện Đại
08/08/2024 09:46:03 AM 2218

Kiến Trúc Mộc Lam đơn vị chuyên nghiệp tại Hà Nội trong lĩnh vực thiết kế kiến trúc nhà ở. Đây là  bản vẽ thiết kế mẫu nhà 3 tầng hiện đại đẹp 2024 được đơn vị chúng tôi thiết kế cho khách hàng của mình. Hiện chúng tôi nhấn bán hồ sơ thiết kế nhà này cho khách hàng có nhu cầu. Mời các bạn tham khảo ngay.

Bán Bản Vẽ Thiết Kế Nhà 3 Tầng Tân Cổ Điển
Bán Bản Vẽ Thiết Kế Nhà 3 Tầng Tân Cổ Điển
07/08/2024 15:25:53 PM 2088

Kiến Trúc Mộc Lam đơn vị chuyên nghiệp tại Hà Nội trong lĩnh vực thiết kế kiến trúc nhà ở. Đây là  bản vẽ thiết kế mẫu nhà tân cổ điển 3 tầng mái thái đẹp 2024 được đơn vị chúng tôi thiết kế cho khách hàng của mình. Hiện chúng tôi nhấn bán hồ sơ thiết kế nhà này cho khách hàng có nhu cầu. Mời các bạn tham khảo ngay.

Bán Hồ Sơ Thiết Kế Nhà 2 Tầng Chữ L Mái Thái Đẹp
Bán Hồ Sơ Thiết Kế Nhà 2 Tầng Chữ L Mái Thái Đẹp
02/08/2024 16:17:39 PM 2088

Kiến Trúc Mộc Lam xin giới thiệu đến bạn hồ sơ thiết kế nhà 2 tầng chữ L hiện đại đang được yêu thích nhất hiện nay bởi phong cách kiến trúc mang đầy đủ sự tinh tế, hiện đại và đầy tính ứng dụng. Đây là bản vẽ thiết kế nhà 2 tầng hình chữ L, nếu các bạn đang có nhu cầu tìm hiểu tư vấn thuê thiết kế hay muốn mua full bộ hồ sơ này thì hãy liên hệ ngay với chúng tôi.

Bán Bản Vẽ Mẫu Biệt Thự 4 Tầng Hiện Đại Siêu Đẹp Full Công Năng 2024
Bán Bản Vẽ Mẫu Biệt Thự 4 Tầng Hiện Đại Siêu Đẹp Full Công Năng 2024
02/08/2024 15:27:16 PM 2086

Kiến Trúc Mộc Lam xin giới thiệu đến bạn mẫu thiết kế biệt thự 4 tấng hiện đại đang được yêu thích nhất hiện nay bởi phong cách kiến trúc mang đầy đủ sự tinh tế, hiện đại và đầy tính ứng dụng. Đây là bản vẽ thiết kế biệt thự 4 tầng hiện đại, nếu các bạn đang có nhu cầu tìm hiểu tư vấn thuê thiết kế hay muốn mua full bộ hồ sơ này thì hãy liên hệ ngay với chúng tôi.

Bán Bản Vẽ Mẫu Nhà Ống 4 Tầng Hiện Đại
Bán Bản Vẽ Mẫu Nhà Ống 4 Tầng Hiện Đại
02/08/2024 15:07:34 PM 2108

Kiến Trúc Mộc Lam xin giới thiệu đến bạn mẫu thiết kế nhà ống 4 tấng hiện đại đang được yêu thích nhất hiện nay bởi phong cách kiến trúc mang đầy đủ sự tinh tế, hiện đại và đầy tính ứng dụng. Đây là mẫu thiết kế nhà 4 tầng hiện đại, nếu các bạn đang có nhu cầu tìm hiểu tư vấn thuê thiết kế hay muốn mua full bộ hồ sơ này thì hãy liên hệ ngay với chúng tôi.

Bán Bản Vẽ Mẫu Nhà 2 Tầng Mái Chéo Hiện Đại Siêu Đẹp Full Công Năng 2024
Bán Bản Vẽ Mẫu Nhà 2 Tầng Mái Chéo Hiện Đại Siêu Đẹp Full Công Năng 2024
01/08/2024 15:08:51 PM 2412

Trọn bộ hồ sơ thiết kế kiến trúc mẫu nhà 2 tầng mái chéo hiện đại đẹp của Kiến Trúc Mộc Lam. Công ty chúng tôi là đơn vị chuyên thiết kế nhà ở có trụ sở tại Hà Nội. Đây là mẫu thiết kế biệt thự 2 tầng hiện đại, nếu các bạn đang có nhu cầu tìm hiểu tư vấn thuê thiết kế hay muốn mua full bộ hồ sơ này thì hãy liên hệ ngay với chúng tôi.

Điền vào form đăng ký

icon hotline icon hotline

ĐĂNG KÝ TƯ VẤN

(Điền thông tin vào form)